Categorias disponíveis
Linguagem
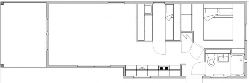
T2 K009 - 14900€

Contentor de 2 quartos: € 14.900 Número de quartos: 2 quartos Isolamento das paredes: lã de rocha (10 cm) Isolamento do chão e do teto: lã de rocha (15 cm) Paredes interiores: painéis resistentes à humidade* Dimensões: 12 m × 3,75 m × 4,20 m (50,5 m²)

Imagem

Opções de Pagamento em Várias Parcelas

Entendemos que o financiamento pode ser um desafio. É por isso que implementamos um sistema de pagamento em 4 parcelas para facilitar a compra do seu contentor. Veja como funciona:

1 : Pague 50% do valor

Pague 50% do valor de venda antes da entrega e os 50% restantes após a entrega.

2 : Pagamento inicial de 30%

Pagamento de entrada de 30% e o restante pago mensalmente por um determinado período, com juros de 2,5%

3 : Entrega gratuita

A entrega é gratuita se o pagamento for efetuado integralmente no momento do pedido.

4 : Custos de entrega e instalação

Os custos de entrega e instalação devem ser pagos integralmente antes da expedição.

Estamos comprometidos em tornar sua experiência de compra o mais tranquila possível. Se tiver dúvidas sobre o processo de pagamento, não hesite em nos contactar.